Ufficio in vendita

Cosenza, Via Francesco Muzzillo
5 locali 5 locali
250 Mq 250 Mq
1 bagno 1 bagno

Ufficio in vendita

Cosenza, Via Francesco Muzzillo

Descrizione annuncio

Cosa sapere:

- a pochi km dall'uscita autostradale;

- ampio spazio interno;

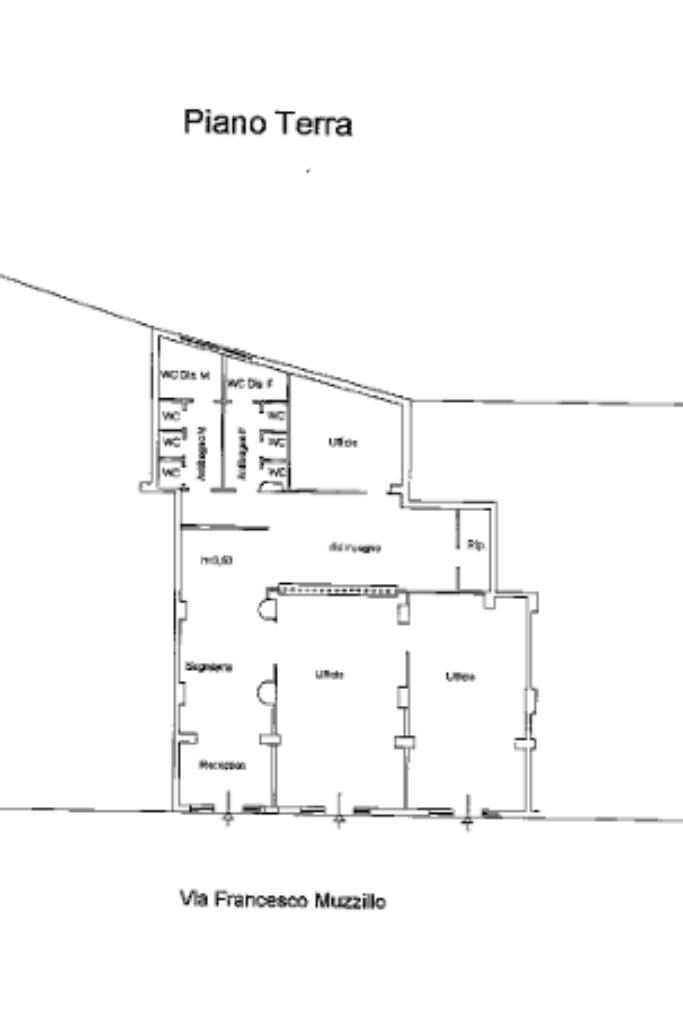
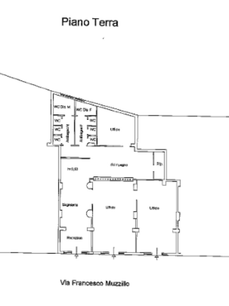
Tecnocasa Immobili per l'Impresa propone in vendita, nel cuore di Cosenza, ufficio di 250 mq, costruito nel 2006, che offre una posizione strategica a due passi dall'autostrada. Questo spazio professionale è situato in una zona ben servita, con facile accesso ai principali servizi cittadini.

L'ufficio è caratterizzato da un ambiente ampio e ben organizzato, suddiviso in diverse stanze che permettono una gestione ottimale degli spazi lavorativi. La presenza di più bagni garantisce comfort e funzionalità per il personale e i visitatori. La struttura moderna e ben mantenuta rappresenta una soluzione ideale per chi cerca un ambiente di lavoro efficiente e ben collegato.

Chi siamo:

Tecnocasa Immobili per l'Impresa è la rete di intermediazione immobiliare in franchising che opera nel settore non residenziale dedicandosi alla risoluzione delle esigenze immobiliari di aziende, professionisti e investitori, offrendo una consulenza specializzata.

Affidati a noi per conoscere più approfonditamente tutte le dinamiche del mondo dell'impresa, la nostra consulenza è gratuita e senza impegno.

Puoi trovarci sulla pagina Instagram @tecnocasaimpresacosenza oppure su Facebook @gruppotecnocasaimpresarende

Mostra tutto

Nelle vicinanze

Trasporto pubblico Trasporto pubblico
Cosenza Centro
Cosenza Centro
1,1 Km
Cosenza Casali
Cosenza Casali
2,1 Km
Cosenza Autostazione (1)
Cosenza Autostazione (1)
700 m
Cosenza Autostazione (2)
Cosenza Autostazione (2)
710 m
Cosenza Campanella
Cosenza Campanella
1,3 Km
Ricariche auto elettriche Ricariche auto elettriche
Cosenza Misasi | EnelX
480 m
EnelX Fast EVA+ Cosenza
760 m
Cosenza Tribunale | EnelX
1,3 Km
COSENZA Città dei Ragazzi | ENELX
1,5 Km
Mendicino Rosario | EnelX
1,7 Km
Scuole Scuole
Liceo Scientifico Enrico Fermi
720 m
Liceo Scientifico "Enrico Fermi"
740 m
Scuole
1,0 Km
Scuole
1,2 Km
ITI A. Monaco
1,3 Km
Farmacia Farmacia
Farmacia Beneduce Antonietta
1,1 Km
Ospedali Ospedali
Pronto Soccorso
460 m
Ospedale di Cosenza
610 m
Biocontrol
1,2 Km
Supermercati Supermercati
NaturHouse
490 m
GS
790 m
Scarpelli
920 m
Interspar
970 m
Carrefour Market
1,0 Km
Negozi Negozi
Panificio Occhiuto
2,1 Km
Negozi
3,0 Km
Bar Bar
Bar Kennedy
550 m
Panoramico
620 m
Bar
680 m
Bar San Francesco
740 m
Renzelli
1,0 Km
Ristoranti Ristoranti
Ristoranti
2,0 Km
Pizzeria Le Magnolie
2,8 Km
Mostra tutto

Caratteristiche

Rif.:
61145110
Piano:
Terra di 7
Totale piani:
7
Condizionamento:
Autonomo
Ascensore:
No
Riscaldamento:
Autonomo
Mostra tutto
Prezzo Prezzo
€ 197.000
Rata mutuo Rata mutuo
€ 920 / mese
Spese annue Spese annue
€ 1
Anche in affitto a
Proponi il tuo prezzoProponi il tuo prezzo

Altre caratteristiche

Descrizione dei locali
Bagno Cieco

Classe Energetica

E
E
E
E
E
E
E
E
E
Anno di costruzione:
2006
Riscaldamento:
Autonomo
Tipo impianto:
Ad aria
Tipo alimentazione:
Aria

Ti interessa visionare l'immobile?

Fissa un appuntamento  Fissa un appuntamento

Richiedi informazioni

Clicca su Leggi per aprire l'informativa
* Questi campi sono obbligatori

Calcola il tuo mutuo

Semplice e senza impegno
Anticipo

( % )
Mutuo

( % )

pochi semplici passi

inserisci i tuoi dati
Questionario completato
Grazie per aver richiesto un appuntamento senza impegno con un nostro Consulente del Credito e Assicurativo.

Hai inserito correttamente tutti i dati necessari e a breve riceverai una e-mail con un link da convalidare per inviare i tuoi dati.
Affiliato
2L Immobili Per L'Impresa Srl
Via Gioacchino Rossini, 215 87036 Rende (CS)

Il nostro staff


  • Jolanda Leone
    Coordinatrice

  • Mattia Lenti
    Affiliato

  • Carmine Leone
    Affiliato
Via Gioacchino Rossini, 215 87036 Rende (CS)
Zona: Rende-Cosenza-Rose-Castrolibero-Montalto Uffugo
Mostra su mappa
Orari: Lun/Ven 08:30 - 12:30 / 15:00 - 19:00 - Sab 09:00/12:30
Affiliato
2L Immobili Per L'Impresa Srl
Via Gioacchino Rossini, 215 87036 Rende (CS)

2026 Tecnocasa Franchising S.p.A. - P. IVA 08365160152 - Via Monte Bianco 60/A 20089 Rozzano (MI). Ogni agenzia ha un proprio titolare ed è autonoma. Privacy policy | Policy utilizzo | Cookie policy