Negozio in vendita

Montalto Uffugo, Corso Italia - Taverna
€ 1.050.000
1 locale 1 locale
1200 Mq 1200 Mq
1 bagno 1 bagno

Negozio in vendita

Montalto Uffugo, Corso Italia - Taverna

Descrizione annuncio

Cosa sapere:

- Ultimo piano di una palazzina commerciale;

- a due passi dall'uscita autostradale 'Rose - Montalto Uffugo';

- ingresso indipendente, con piazzale privato.

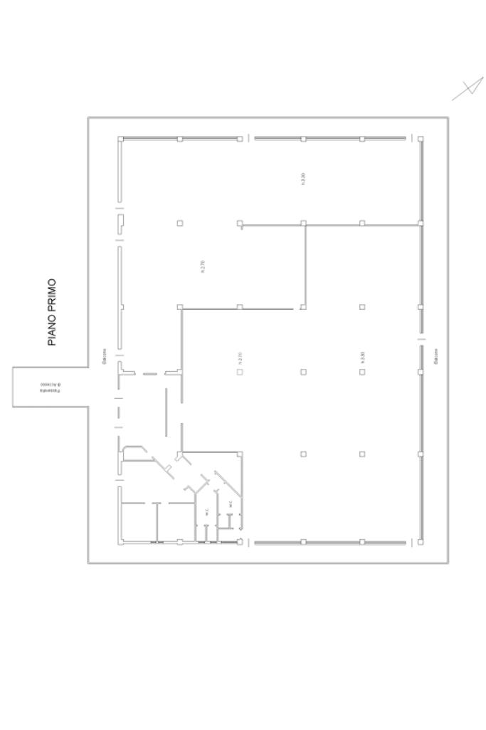
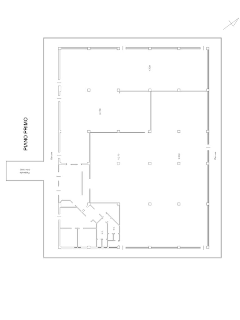
Tecnocasa Immobili per l'Impresa propone in vendita ampio locale commerciale di 1200mq interni e piazzale privato recintato pavimentato di circa 500mq. Ingresso indipendente, con cancello carrabile e perdonale.

In zona molto servita e in forte espansione, con il raccordo autostradale a due passi, uscita 'Rose - Montalto Uffugo', ubicato in palazzina prettamente commerciale servita da Supermercato 'Conad', negozi di abbigliamento e pub 'Ceres-pub'.

Parcheggi di pertinenza nel piazzale recintato.

Chi siamo:

Tecnocasa Immobili per l'Impresa è la rete di intermediazione immobiliare in franchising che opera nel settore non residenziale dedicandosi alla risoluzione delle esigenze immobiliari di aziende, professionisti e investitori, offrendo una consulenza specializzata.

Affidati a noi per conoscere più approfonditamente tutte le dinamiche del mondo dell'impresa, la nostra consulenza è gratuita e senza impegno.

Puoi trovarci sulla pagina Instagram @tecnocasaimpresacosenza oppure su Facebook @gruppotecnocasaimpresarende

Mostra tutto

Nelle vicinanze

Ricariche auto elettriche Ricariche auto elettriche
EnelX EVA+ Conad Taverna di Montalto
1,2 Km
Negozi Negozi
Malizia
220 m
Pan C
230 m
Mostra tutto

Caratteristiche

Rif.:
60946002
Piano:
1 di 2 (Piano medio)
Posti auto:
10
Balconi:
1
Condizionamento:
Autonomo
Ascensore:
No
Mostra tutto
Prezzo Prezzo
€ 1.050.000
Rata mutuo Rata mutuo
€ 4.984 / mese
Spese annue Spese annue
€ 0
Proponi il tuo prezzoProponi il tuo prezzo

Altre caratteristiche

Descrizione dei locali
Bagno Con Finestra

Classe Energetica

G
G
G
G
G
G
G
G
G
Anno di costruzione:
1990
Riscaldamento:
Autonomo
Tipo impianto:
Ad aria
Tipo alimentazione:
Aria

Ti interessa visionare l'immobile?

Fissa un appuntamento  Fissa un appuntamento

Richiedi informazioni

Clicca su Leggi per aprire l'informativa
* Questi campi sono obbligatori

Calcola il tuo mutuo

Semplice e senza impegno
Anticipo

( % )
Mutuo

( % )

pochi semplici passi

inserisci i tuoi dati
Questionario completato
Grazie per aver richiesto un appuntamento senza impegno con un nostro Consulente del Credito e Assicurativo.

Hai inserito correttamente tutti i dati necessari e a breve riceverai una e-mail con un link da convalidare per inviare i tuoi dati.
Affiliato
2L Immobili Per L'Impresa Srl
Via Gioacchino Rossini, 215 87036 Rende (CS)

Il nostro staff


  • Jolanda Leone
    Coordinatrice

  • Mattia Lenti
    Affiliato

  • Carmine Leone
    Affiliato
Via Gioacchino Rossini, 215 87036 Rende (CS)
Zona: Rende-Cosenza-Rose-Castrolibero-Montalto Uffugo
Mostra su mappa
Orari: Lun/Ven 08:30 - 12:30 / 15:00 - 19:00 - Sab 09:00/12:30
Affiliato
2L Immobili Per L'Impresa Srl
Via Gioacchino Rossini, 215 87036 Rende (CS)

2026 Tecnocasa Franchising S.p.A. - P. IVA 08365160152 - Via Monte Bianco 60/A 20089 Rozzano (MI). Ogni agenzia ha un proprio titolare ed è autonoma. Privacy policy | Policy utilizzo | Cookie policy